Praktikum

Praktikum

In verschiedenen Branchen und mit verschiedensten Medien gewann ich tieferen Einblick im Praktikum. Vom Architekten über die Werbeagentur, bis hin zum Dentallabor, durfte ich sehr viel kennen und schätzen lernen..

Hier bot sich die Möglichkeit stilvoll im Umgang mit den gängigen Programmen Designs für unterschiedlichste Bereiche zu erstellen. Ich zeige Ihnen hier lediglich Auszüge daraus.

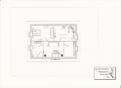
Ich bekam Gelegenheit mit dem professionellen Architekturprogramm Arcon zu arbeiten. Sehr schnell fand ich mich darin zurecht, sodass schon bald ein ganzes Haus entstand. Auszüge daraus sehen Sie hier.

Meine Ausbildung war so vielseitig, wie die Praktikas, die sich mir boten. Ich habe viel erlernt und durfte tiefen Einblick gewinnen in die Tätigkeit eines Mediengestalters.

Posted on: 31. Dezember 2023nicole

Schreibe einen Kommentar

Deine E-Mail-Adresse wird nicht veröffentlicht. Erforderliche Felder sind mit * markiert